Skip to main content
Reset
Reset
Search
Contact
English
België
Deutschland
France
India
International (englisch)
Italia
Nederland
Österreich
Polska
România
Schweiz
Türkiye
Products
Products
Backwater protection
Backwater protection - everything that experts need to know
Backwater valves
Pumpfix M
Staufix FKA
Staufix SWA
Controlfix
Staufix
Staufix Basic
Staufix DN 50 and DN 70
Staufix Siphon DN 50
Pipe flap valves
Backwater chambers
Standard backwater chamber
Modular backwater chamber
Hybrid lifting stations
Everything that experts need to know
Ecolift M
Ecolift L
Ecolift XL
Pump technology
Information about pump technology
Small lifting stations
Minilift S
Minilift M
Minilift L
Minilift M WC
Minilift L WC
Minilift L WC Duo
Lifting stations
Aqualift M
Aqualift L
Aqualift L Pro
Aqualift 100 and 200
Aqualift XL
CleverLoop
CleverVent
Pumping stations
Aquapump Small
Aquapump Medium
Aquapump XL Basic
Aquapump XL
Aquapump XXL
Pump installation kits Retrofit
Submersible pumps
Aquadive KTP 300
Aquadive GTF 500
Aquadive GTF 1000
Aquadive STZ 1000
Drain technology
Drain technology - everything that experts need to know
Bathroom drains and shower channels
The Ultraflat
Linearis Infinity
Linearis Comfort
Linearis Compact
Scada wall drain
Classic bathroom drain
Giro bathroom drain
ME floor drain
The Superflat
Floor drains
Ecoguss floor drain
Practicus floor drain
Ferrofix floor drain
Basement drains
Pumpfix S Underfloor
Universale Plus
The Universal basement drain
Drehfix basement drain
Light liquid trap
Basement drains without a backwater protection system
Outdoor drains
Ecoguss parking deck drains
Yard drains
Gutter drains
Roof drains for flat roof surfaces
Separators
Grease separators
Grease separators - everything that professionals need to know
EasyClean free
EasyClean free round
EasyClean free Modular
EasyClean free Self Disposal
EasyClean free UnderSink
EasyClean ground
EasyClean ground Oval
EasyClean ground Multi
BIFENA
Light liquid separator
EasyOil ground coalescence separator
EasyOil ground oil/fuel separator
EasyOil free coalescence separator
Starch separators
Sediment separators
Engineering chambers
Customised solutions
References
OEM solutions
Service
Catalogues & brochures
Installation and operating instructions
Spare parts
BIM data and CAD drawings
SmartSelect
Product registration
Minilift
About KESSEL
Company profile
mastering water
Integrated management system
Sustainability
Service
Products
Backwater protection
Backwater protection - everything that experts need to know
Backwater valves
Pumpfix M
Staufix FKA
Staufix SWA
Controlfix
Staufix
Staufix Basic
Staufix DN 50 and DN 70
Staufix Siphon DN 50
Pipe flap valves
Backwater chambers
Standard backwater chamber
Modular backwater chamber
Hybrid lifting stations
Everything that experts need to know
Ecolift M
Ecolift L
Ecolift XL
Pump technology
Information about pump technology
Small lifting stations
Minilift S
Minilift M
Minilift L
Minilift M WC
Minilift L WC
Minilift L WC Duo
Lifting stations
Aqualift M
Aqualift L
Aqualift L Pro
Aqualift 100 and 200
Aqualift XL
CleverLoop
CleverVent
Pumping stations
Aquapump Small
Aquapump Medium
Aquapump XL Basic
Aquapump XL
Aquapump XXL
Pump installation kits Retrofit
Submersible pumps
Aquadive KTP 300
Aquadive GTF 500
Aquadive GTF 1000
Aquadive STZ 1000
Drain technology
Drain technology - everything that experts need to know
Bathroom drains and shower channels
The Ultraflat
Linearis Infinity
Linearis Comfort
Linearis Compact
Scada wall drain
Classic bathroom drain
Giro bathroom drain
ME floor drain
The Superflat
Floor drains
Ecoguss floor drain
Practicus floor drain
Ferrofix floor drain
Basement drains
Pumpfix S Underfloor
Universale Plus
The Universal basement drain
Drehfix basement drain
Light liquid trap
Basement drains without a backwater protection system
Outdoor drains
Ecoguss parking deck drains
Yard drains
Gutter drains
Roof drains for flat roof surfaces
Separators
Grease separators
Grease separators - everything that professionals need to know
EasyClean free
EasyClean free round
EasyClean free Modular
EasyClean free Self Disposal
EasyClean free UnderSink
EasyClean ground
EasyClean ground Oval
EasyClean ground Multi
BIFENA
Light liquid separator
EasyOil ground coalescence separator
EasyOil ground oil/fuel separator
EasyOil free coalescence separator
Starch separators
Sediment separators
Engineering chambers
Customised solutions
References
OEM solutions
Service
Catalogues & brochures
Installation and operating instructions
Spare parts
BIM data and CAD drawings
SmartSelect
Product registration
Minilift
About KESSEL
Company profile
mastering water
Integrated management system
Sustainability
Planning manual
About KESSEL
Products
Backwater protection
Backwater protection - everything that experts need to know
Backwater valves
Pumpfix M
Staufix FKA
Staufix SWA
Controlfix
Staufix
Staufix Basic
Staufix DN 50 and DN 70
Staufix Siphon DN 50
Pipe flap valves
Backwater chambers
Standard backwater chamber
Modular backwater chamber
Hybrid lifting stations
Everything that experts need to know
Ecolift M
Ecolift L
Ecolift XL
Pump technology
Information about pump technology
Small lifting stations
Minilift S
Minilift M
Minilift L
Minilift M WC
Minilift L WC
Minilift L WC Duo
Lifting stations
Aqualift M
Aqualift L
Aqualift L Pro
Aqualift 100 and 200
Aqualift XL
CleverLoop
CleverVent
Pumping stations
Aquapump Small
Aquapump Medium
Aquapump XL Basic
Aquapump XL
Aquapump XXL
Pump installation kits Retrofit
Submersible pumps
Aquadive KTP 300
Aquadive GTF 500
Aquadive GTF 1000
Aquadive STZ 1000
Drain technology
Drain technology - everything that experts need to know
Bathroom drains and shower channels
The Ultraflat
Linearis Infinity
Linearis Comfort
Linearis Compact
Scada wall drain
Classic bathroom drain
Giro bathroom drain
ME floor drain
The Superflat
Floor drains
Ecoguss floor drain
Practicus floor drain
Ferrofix floor drain
Basement drains
Pumpfix S Underfloor
Universale Plus
The Universal basement drain
Drehfix basement drain
Light liquid trap
Basement drains without a backwater protection system
Outdoor drains
Ecoguss parking deck drains
Yard drains
Gutter drains
Roof drains for flat roof surfaces
Separators
Grease separators
Grease separators - everything that professionals need to know
EasyClean free
EasyClean free round
EasyClean free Modular
EasyClean free Self Disposal
EasyClean free UnderSink
EasyClean ground
EasyClean ground Oval
EasyClean ground Multi
BIFENA
Light liquid separator
EasyOil ground coalescence separator
EasyOil ground oil/fuel separator
EasyOil free coalescence separator
Starch separators
Sediment separators
Engineering chambers
Customised solutions
References
OEM solutions
Service
Catalogues & brochures
Installation and operating instructions
Spare parts
BIM data and CAD drawings
SmartSelect
Product registration
Minilift
About KESSEL
Company profile
mastering water
Integrated management system
Sustainability
Products
Backwater protection
Backwater protection - everything that experts need to know
Backwater valves
Pumpfix M
Staufix FKA
Staufix SWA
Controlfix
Staufix
Staufix Basic
Staufix DN 50 and DN 70
Staufix Siphon DN 50
Pipe flap valves
Backwater chambers
Standard backwater chamber
Modular backwater chamber
Hybrid lifting stations
Everything that experts need to know
Ecolift M
Ecolift L
Ecolift XL
Pump technology
Information about pump technology
Small lifting stations
Minilift S
Minilift M
Minilift L
Minilift M WC
Minilift L WC
Minilift L WC Duo
Lifting stations
Aqualift M
Aqualift L
Aqualift L Pro
Aqualift 100 and 200
Aqualift XL
CleverLoop
CleverVent
Pumping stations
Aquapump Small
Aquapump Medium
Aquapump XL Basic
Aquapump XL
Aquapump XXL
Pump installation kits Retrofit
Submersible pumps
Aquadive KTP 300
Aquadive GTF 500
Aquadive GTF 1000
Aquadive STZ 1000
Drain technology
Drain technology - everything that experts need to know
Bathroom drains and shower channels
The Ultraflat
Linearis Infinity
Linearis Comfort
Linearis Compact
Scada wall drain
Classic bathroom drain
Giro bathroom drain
ME floor drain
The Superflat
Floor drains
Ecoguss floor drain
Practicus floor drain
Ferrofix floor drain
Basement drains
Pumpfix S Underfloor
Universale Plus
The Universal basement drain
Drehfix basement drain
Light liquid trap
Basement drains without a backwater protection system
Outdoor drains
Ecoguss parking deck drains
Yard drains
Gutter drains
Roof drains for flat roof surfaces
Separators
Grease separators
Grease separators - everything that professionals need to know
EasyClean free
EasyClean free round
EasyClean free Modular
EasyClean free Self Disposal
EasyClean free UnderSink
EasyClean ground
EasyClean ground Oval
EasyClean ground Multi
BIFENA
Light liquid separator
EasyOil ground coalescence separator
EasyOil ground oil/fuel separator
EasyOil free coalescence separator
Starch separators
Sediment separators
Engineering chambers
Customised solutions
References
OEM solutions
Service
Catalogues & brochures
Installation and operating instructions
Spare parts
BIM data and CAD drawings
SmartSelect
Product registration
Minilift
Planning manual
About KESSEL
Company profile
mastering water
Integrated management system
Sustainability
The KESSEL Planning Manual
Helpful information, useful tips, all important standards and planning specifications bundled in one place: make your work easier with our digital planning manual.
Search
Search
Reset filters
Solutions
Backwater protection
Drainage technology
Grease separators
Hybrid lifting stations
Light liquid separator
Pump technology
Sediment separator
Starch separators
Know-how
Basics
Installation & Connection
Operation & Maintenance
Planning & Regulations
Solutions & Features
disposal
Operation & Maintenance
Light liquid separator
1 min read
Solutions
Solutions & Features
Light liquid separator
1 min read
connection
Planning & Regulations
Light liquid separator
1 min read
Underground installation
Planning & Regulations
Light liquid separator
2 min read
Planning tips: Light liquid separators
Planning & Regulations
Light liquid separator
5 min read
backwater protection
Basics
Light liquid separator
1 min read
Standards and regulations
Basics
Backwater protection
2 min read
The key considerations when planning backflow prevention systems
Planning & Regulations
Backwater protection
1 min read
Pump technology
Basics
Pump technology
2 min read
What is backwater?
Basics
Backwater protection
2 min read
Basic planning principles
Basics
Backwater protection
2 min read
Statutory applicability
Basics
Backwater protection
3 min read
How a light liquid separator works
Basics
Light liquid separator
4 min read
Operating grease separators more cost-effectively
Operation & Maintenance
Grease separators
2 min read
Maintenance of grease separators
Operation & Maintenance
Grease separators
1 min read
General inspection including a leak test
Operation & Maintenance
Grease separators
2 min read
Disposal of the contents of the grease trap
Operation & Maintenance
Grease separators
1 min read
Connection of grease separators
Installation & Connection
Grease separators
2 min read
Delivery & installation
Solutions & Features
Grease separators
1 min read
Grease separator for underground installation
Solutions & Features
Grease separators
3 min read
Grease separator for free-standing installation
Solutions & Features
Grease separators
3 min read
Pumping grease wastewater
Planning & Regulations
Grease separators
2 min read
Grease separators & backwater protection
Planning & Regulations
Grease separators
2 min read
Aeration and ventilation of grease separators
Planning & Regulations
Grease separators
3 min read
Disposal pipe
Planning & Regulations
Grease separators
1 min read
Connection of grease separators – Planning
Planning & Regulations
Grease separators
2 min read
Tips for choosing a location
Planning & Regulations
Grease separators
2 min read
Design of a grease separator in accordance with DIN 1825-2
Planning & Regulations
Grease separators
2 min read
What must not be allowed to enter the grease separator?
Basics
Grease separators
1 min read
How does a grease separator work?
Basics
Grease separators
1 min read
general inspection
Operation & Maintenance
Light liquid separator
1 min read
The basics of hybrid lifting stations
Basics
Hybrid lifting stations
3 min read
Self-inspection, maintenance and operation
Operation & Maintenance
Light liquid separator
2 min read
Identification of the discharge points requiring protection
Planning & Regulations
Backwater protection
2 min read
When is a light liquid separator required?
Basics
Light liquid separator
1 min read
Maintenance of drainage systems
Operation & Maintenance
Drainage technology
2 min read
Door channels
Solutions & Features
Drainage technology
2 min read
Stainless steel floor drains and channels
Solutions & Features
Drainage technology
5 min read
Backflow-proof drains
Solutions & Features
Drainage technology
1 min read
The basics of sediment separators
Basics
Sediment separator
1 min read
Drainage systems for bathroom renovations
Solutions & Features
Drainage technology
2 min read
The basics of starch separators
Basics
Starch separators
1 min read
Fire safety for drainage systems
Planning & Regulations
Drainage technology
5 min read
Inspection and maintenance
Operation & Maintenance
Backwater protection
2 min read
Safe operation
Operation & Maintenance
Backwater protection
1 min read
Waterproofing layer (white tank)
Planning & Regulations
Drainage technology
1 min read
Types of rust and slip resistance classes
Basics
Drainage technology
3 min read
Sound insulation for floor drains
Basics
Drainage technology
4 min read
floor slab installation
Installation & Connection
Backwater protection
2 min read
calming section
Installation & Connection
Backwater protection
1 min read
Installation
Installation & Connection
Backwater protection
1 min read
Load classes for drainage systems
Basics
Drainage technology
1 min read
Self-Diagnostic System – SDS
Solutions & Features
Backwater protection
3 min read
modular system
Solutions & Features
Backwater protection
1 min read
Pipe connection to drains
Basics
Drainage technology
1 min read
Choice of materials for drains
Basics
Drainage technology
2 min read
Proposed solutions
Solutions & Features
Backwater protection
under 1 min read
Backwater protection for waste water within the building
Solutions & Features
Backwater protection
1 min read
Backwater protection for waste water outside the building
Solutions & Features
Backwater protection
1 min read
Alternative odour traps
Basics
Drainage technology
1 min read
Principle of operation
Basics
Drainage technology
under 1 min read
Waterproofing layer with custom shapes
Planning & Regulations
Drainage technology
2 min read
Product selection
Solutions & Features
Backwater protection
3 min read
Waterproofing layer with waterproofing sheets
Planning & Regulations
Drainage technology
2 min read
Backwater protection in rainwater harvesting systems and small-scale sewage treatment plants
Planning & Regulations
Backwater protection
2 min read
Waterproofing layer for drains in composite structures
Planning & Regulations
Drainage technology
1 min read
Water exposure class
Planning & Regulations
Drainage technology
1 min read
Calculation of discharge capacity
Planning & Regulations
Drainage technology
3 min read
Key standards in process engineering
Planning & Regulations
Drainage technology
1 min read
Planning floor drains
Planning & Regulations
Drainage technology
2 min read
Backwater protection for wastewater containing mineral oil
Planning & Regulations
Backwater protection
3 min read
Backwater protection for Grease wastewater
Planning & Regulations
Backwater protection
2 min read
Collective drainage for small areas with rainwater
Planning & Regulations
Backwater protection
2 min read
Rainwater backwater protection
Planning & Regulations
Backwater protection
3 min read
Determining the type of use
Planning & Regulations
Backwater protection
3 min read
Inspection and maintenance of pumping equipment
Operation & Maintenance
Pump technology
2 min read
Commissioning of pumping equipment
Operation & Maintenance
Pump technology
1 min read
Free-standing lifting stations
Solutions & Features
Pump technology
3 min read
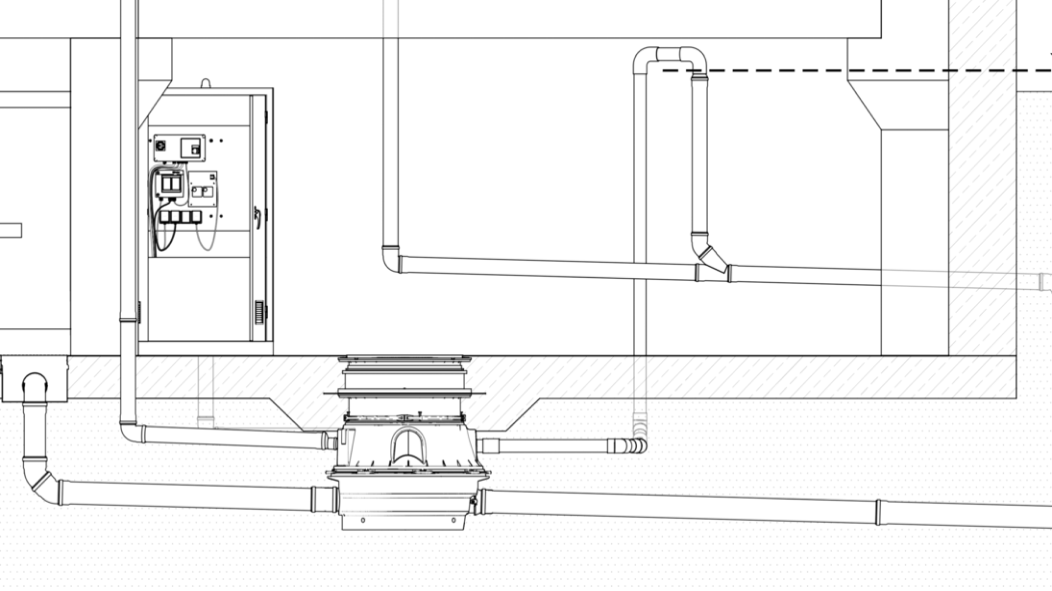
Underground lifting station
Solutions & Features
Pump technology
6 min read
Space requirements and installation space
Planning & Regulations
Hybrid lifting stations
1 min read
Determination of the type of wastewater and volume of wastewater
Planning & Regulations
Backwater protection
2 min read
Lifting station in the floor slab
Solutions & Features
Pump technology
5 min read
Switch and alarm unit
Planning & Regulations
Pump technology
1 min read
The need for a backup conveyor system
Planning & Regulations
Pump technology
2 min read
Pump flow rate
Planning & Regulations
Pump technology
2 min read
Ensure rainwater is safely drained away
Planning & Regulations
Pump technology
3 min read
Pressure pipes in pump technology
Planning & Regulations
Pump technology
2 min read
Aeration and ventilation of lifting stations
Planning & Regulations
Pump technology
2 min read
Installation room
Planning & Regulations
Pump technology
1 min read
Impeller types for pump technology
Basics
Pump technology
2 min read
Determining the type of drainage
Planning & Regulations
Backwater protection
1 min read
Explosion protection
Basics
Pump technology
1 min read
Operating modes of wastewater pumps
Basics
Pump technology
2 min read
Probes and sensors
Basics
Pump technology
1 min read
Installation of a lifting station
Basics
Pump technology
1 min read
Key terms
Basics
Pump technology
1 min read
What can be discharged via a lifting station?
Basics
Pump technology
1 min read
Hybrid drainage based on the Ecolift principle
Solutions & Features
Hybrid lifting stations
4 min read
Determining the hedging strategy
Planning & Regulations
Backwater protection
3 min read
Determining the installation location
Planning & Regulations
Backwater protection
1 min read
Rainwater
Planning & Regulations
Hybrid lifting stations
2 min read
Planning and installation
Planning & Regulations
Hybrid lifting stations
3 min read
Pressure pipe on hybrid lifting stations
Planning & Regulations
Hybrid lifting stations
1 min read
aeration and ventilation
Planning & Regulations
Hybrid lifting stations
1 min read
Determination of the backwater level
Planning & Regulations
Backwater protection
2 min read
When is a grease separator required?
Basics
Grease separators
1 min read